Porzione di quadrifamiliare in vendita

Villafranca Padovana, Via Roma - Balla
€ 249.000
4 locali 4 locali
180 Mq 180 Mq
2 bagni 2 bagni

Porzione di quadrifamiliare in vendita

Villafranca Padovana, Via Roma - Balla

Descrizione annuncio

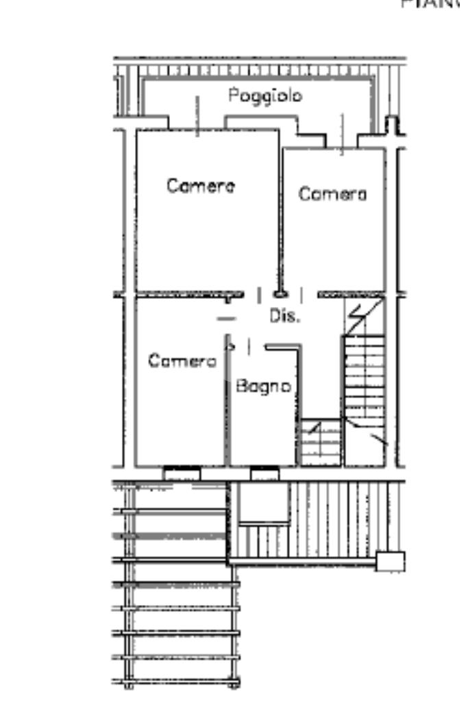
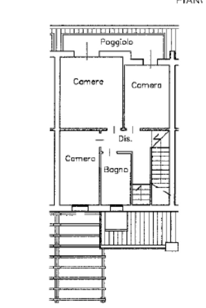
VILLAFRANCA PADOVANA - In un piacevole contesto residenziale in centro al paese, comodo a tutti i servizi principali. Porzione centrale di quadrifamiliare disposta su tre livelli con ingresso pedonale e carraio indipendente. Al piano terra dal portico d'ingresso accediamo nel soggiorno di circa 22 mq, separato dalla cucina di 9 mq. A completamento del piano troviamo il bagno lavanderia con doccia e garage. Salendo le scale raggiungiamo la zona notte, composta da tre camere da letto, una matrimoniale, due singole ed un bagno finestrato con doccia. Due delle tre camere sono servite da poggiolo, esposto ad est. Al piano mansardato è presente un grande ambiente con travi a vista di circa 40 mq, con la predisposizione ad un bagno. Fronte all'abitazione vi è un piccolo scoperto di 25 mq, mentre nel retro è presente una pompeiana esterna per un auto ed un camino a legna, utile per pranzi e cene conviviali.

Mostra tutto

Nelle vicinanze

Trasporto pubblico Trasporto pubblico
Bivio Piazzola
Bivio Piazzola
2,5 Km
Vaccarino
Vaccarino
2,6 Km
Scuole Scuole
Scuola Media
260 m
Scuole
2,8 Km
Farmacia Farmacia
Padova Med
220 m
Farmacia Agostini Dr. Enrico
2,7 Km
Supermercati Supermercati
DPiù
320 m
Negozi Negozi
Negozi
2,3 Km
El Forno De Brocca
2,7 Km
Bar Bar
Grazia Pane, Dolci, Caffè
100 m
Baraonda
130 m
Ristoranti Ristoranti
Ristorante Pizzeria Emanuela
540 m
Pizzeria Bella Napoli
2,6 Km
Pizzeria Cafè Bocconi
2,6 Km
Birreria Pizzeria Paulaner
2,8 Km
Mostra tutto

Caratteristiche

Rif.:
61146138
Piano:
Su più livelli di 3
Totale piani:
3
Box:
1
Posti auto:
1
Terrazzi:
1
Mostra tutto
Prezzo Prezzo
€ 249.000
Rata mutuo Rata mutuo
€ 1.174 / mese
Spese annue Spese annue
€ 0
Proponi il tuo prezzoProponi il tuo prezzo

Classe Energetica

D
D
D
D
D
D
D
D
D
EP globale non rinnovabile:
114.90 kW h/m² anno
EP globale rinnovabile:
4.73 kW h/m² anno
EP invernale del fabbricato:
EP estiva del fabbricato:
Anno di costruzione:
2005
Riscaldamento:
Autonomo
Tipo impianto:
A radiatori
Tipo alimentazione:
Metano

Ti interessa visionare l'immobile?

Fissa un appuntamento  Fissa un appuntamento

Richiedi informazioni

Clicca su Leggi per aprire l'informativa
* Questi campi sono obbligatori

Calcola il tuo mutuo

Semplice e senza impegno
Anticipo

( % )
Mutuo

( % )

pochi semplici passi

inserisci i tuoi dati
Questionario completato
Grazie per aver richiesto un appuntamento senza impegno con un nostro Consulente del Credito e Assicurativo.

Hai inserito correttamente tutti i dati necessari e a breve riceverai una e-mail con un link da convalidare per inviare i tuoi dati.
Affiliato
Comada Srl
Via Roma, 1/C 35010 Limena (PD)

Il nostro staff


  • Jacopo Cogo
    Affiliato
Via Roma, 1/C 35010 Limena (PD)
Zona: Limena-Villafranca Padovana-Campodoro
Mostra su mappa
Orari: Dal lunedì al Venerdì 8:30-12:30 15:00-20:00 Sabato 09:00-13:00
Affiliato
Comada Srl
Via Roma, 1/C 35010 Limena (PD)

2026 Tecnocasa Franchising S.p.A. - P. IVA 08365160152 - Via Monte Bianco 60/A 20089 Rozzano (MI). Ogni agenzia ha un proprio titolare ed è autonoma. Privacy policy | Policy utilizzo | Cookie policy